UNE CUISINE ADAPTÉE A VOS BESOINS
MPS est à votre service ! Nous vous apporterons notre expérience dans le cadre d’audit préalable aux rénovations ou mises aux normes des grandes cuisines.
La valeur de notre bureau d'études
 
															Un budget global maîtrisé pour votre cuisine professionnelle. Une vision exacte du coût de votre future cuisine, avec des plans techniques détaillés.
Des délais garantis et de la flexibilité. Une garantie de délai sur base d’un planning. Des solutions d’aménagement d’une cuisine provisoire en attendant la fin des travaux.
 
															Des économies d’énergie : grâce au choix d’équipements adaptés et peu énergivores.
 
															 
															De l’objectivité et de la transparence : des garanties d’une totale indépendance vis-à-vis des différents acteurs du marché (fabricants, installateurs,…) et toujours à la recherche du matériel le mieux adapté aux besoins spécifiques de ses clients.
Du sur-mesure : une cuisine ERM Project, c’est une conception à la carte, selon les besoins et le budget du client. Ses «architectes» vous présenteront un projet optimum en fonction de vos moyens. À votre écoute, ils pourront vous proposer des options ou des alternatives.
 
															MPS, bureau d’études cuisine, c’est une équipe, des compétences et des personnalités complémentaires. Expert concepteur en restauration collective, nous proposons plus qu’un savoir-faire technique, une approche sur mesure et humaine des espaces de restauration. Parce que chaque projet s’initie dans un contexte particulier, nous concevons nos cuisines en les inscrivant dans leur histoire et dans le dessein architectural. Nous définissons précisément les contours du projet en concertation avec le client et les divers intervenants (maîtrise d’ouvrage, utilisateurs, architectes, bureaux d’études spécialisés), en considération des diverses contraintes exercées et veillons à sa parfaite réalisation.
Un bureau d’études innovant pour l’installation d’équipements de cuisine professionnelle
Afin de proposer une solution parfaitement adaptée à chaque client en termes d’équipements, MPS dispose d’un bureau d’études en interne. Chaque projet est analysé pour y apporter une réponse 100 % sur-mesure. Les techniciens prennent en compte un certain nombre de points avant de proposer une solution :
- Configuration des locaux
- Volume de l’espace
- Activité : selon la taille du restaurant et de l’équipe de cuisiniers, la salle doit être adaptée.
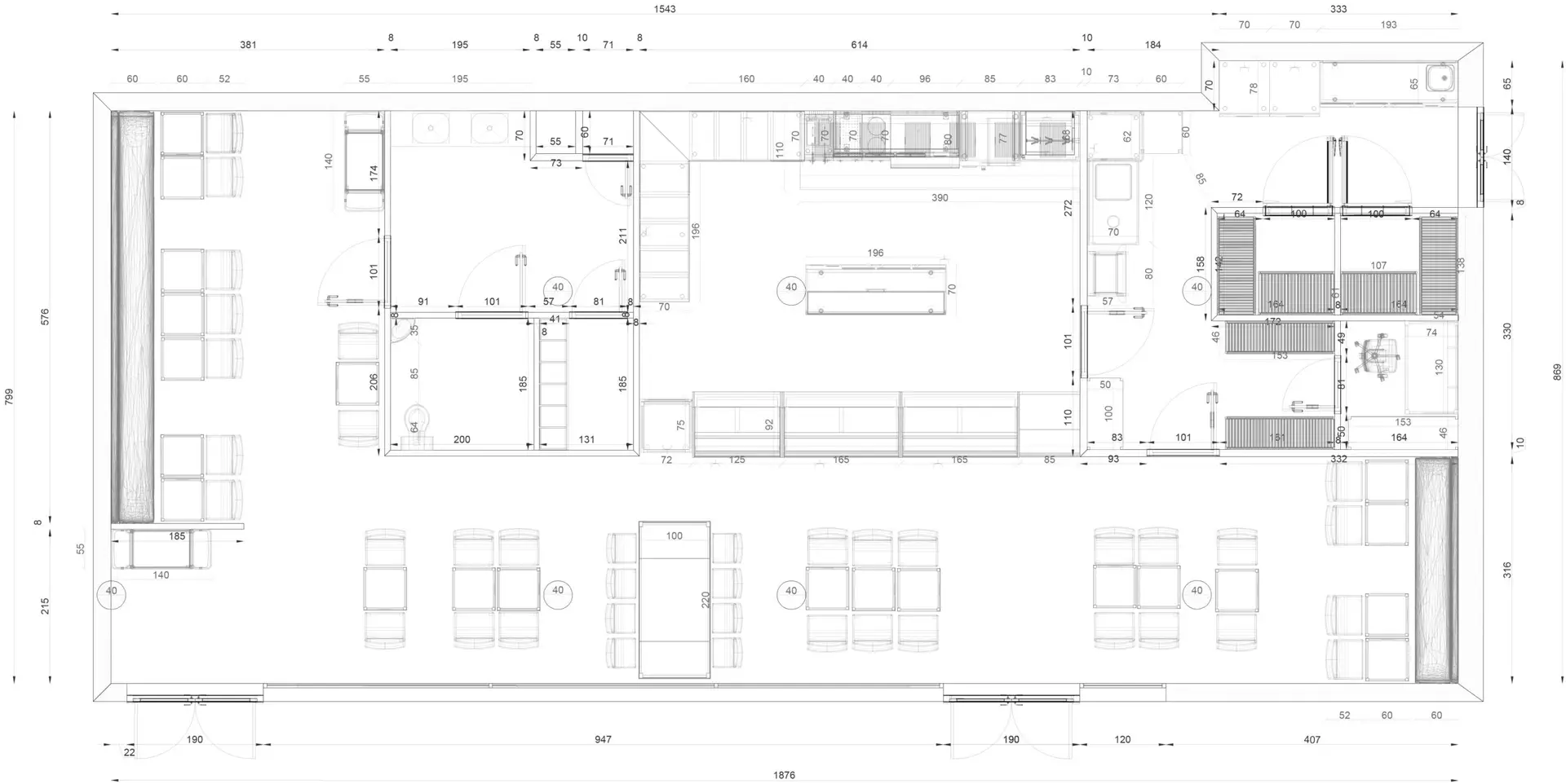
Tous ces éléments permettent de définir comment réaliser l’installation des équipements de cuisine professionnelle. Les techniciens prévoient le déroulement typique d’un service pour concevoir l’aménagement le plus fluide possible. Il s’agit notamment de respecter le principe de « marche en avant » afin d’éviter que les plats n’entrent en contact avec les éléments souillés. Afin d’aider les clients à visualiser et à se projeter dans leur environnement de travail, MPS propose différents outils :
- Esquisse du début de projet sur SketchUp pro 2022
- Plans 2D et vues en coupe avec cote précise sur AutoCAD 2022
- Plans 3D et rendus photoréalistes sur Revit 2022 / 3ds Max 2022 / Vray 5
- Immersion vidéo (Panoramique 360 et réalité virtuelle) : une fois que les clients ont validé les plans, MPS propose une simulation 3D de la cuisine conçue. Cela permet de discuter de l’emplacement de chaque équipement pour optimiser au maximum l’espace de travail. Utilisation du logiciel TwinMotion 2022!
Ces services sont proposés pour chaque projet, dans la continuité des valeurs d’accompagnement et de service premium défendues par la société.



















 
								 
								 
								
